居住区绿化设计cad,提升环境品质,优化空间布局
想做好小区绿化吗,很多人会想到cad,其实,它是个好帮手,但怎么用呢,今天,我们就聊聊这个,帮你理清思路。
先看绿化设计的目标
做小区绿化,目标要明确,不是随便画画,而是要实用,比如,要考虑居民活动,还要考虑美观,当然,生态也很重要,有了目标,cad才好下手。
再看cad图纸的绘制要点
用cad画图,细节是关键,比如,植物怎么摆放,道路怎么连接,这些都要画清楚,比例要对,图层要分好,这样后期修改才方便,不然会很乱。
然后看常见问题的处理
画图时总会遇到问题,比如,空间不够怎么办,树种太多怎么选,这时候,要回到设计初衷,看看哪里可以调整,cad工具很多,多试试就好。
最后看设计与实际的结合
图纸画得好,还得能落地,所以,设计时要考虑施工,比如,预留水电位置,考虑树木生长空间,用cad模拟一下,能避免很多麻烦。
用好cad工具,能让绿化设计更精准,但别忘了,设计是为居民服务的,多从实际使用出发,图纸才会更有价值。
精心栽培,提升植物成活率,打造健康花园
想养好植物吗,很多人都有这个愿望,但实际操作起来,却常常遇到麻烦,叶子发黄,或者干脆不生长,这些问题让人头疼,其实,精心栽培并不难,关键在于掌握正确方法,今天,我们就来聊聊,如何通过细心照料,让你的植物茁壮成长。先看选对位置植物生长,离不开阳光和空气,所以,摆放位置很重要,喜阳的植物,要放在窗边,喜阴的植物,则要避开直射光,同时,还要注意通风,空气流通好,植物才不容易生病,比如绿萝,放在明亮的散射
· 2026-04-03
大叶海棠花怎么养,掌握关键技巧,轻松爆盆开花
你是不是也喜欢大叶海棠,它的叶子油亮亮的,花朵也好看,但就是养不好,别着急,很多人刚开始都这样,其实养好它并不难,关键是要摸清它的脾气,今天我们就来聊聊,怎么才能把它养得枝繁叶茂。先看选盆和配土养花先养根,这话一点没错,对于大叶海棠来说,盆和土是基础,花盆别选太大的,比根球大一圈就行,材质要透气,比如陶盆或加仑盆,土壤更要讲究,它喜欢疏松透气的环境,你可以用营养土,再掺点珍珠岩,或者用腐叶土加河沙
· 2026-04-03
单位大门口绿化设计,提升形象关键,营造舒适环境
很多人都在琢磨,单位门口怎么弄,才能既好看又实用,其实,绿化设计很关键,它不只是种点花草,更是单位的门面,今天,我们就聊聊,怎么把大门口弄得漂漂亮亮。先看绿化设计的目标单位门口绿化,目标要明确,它得提升单位形象,让人一看就觉得专业,要营造舒适氛围,让员工和访客都舒服,然后,还要考虑功能性,比如遮阳、引导人流,维护成本不能太高,要容易打理。再看植物的选择搭配选植物是门学问,不能乱来,要选适合本地气候
· 2026-04-03
栽什么树能防治流感病,了解植物作用,选择合适树种
最近流感高发,很多人都在问,栽什么树能防治流感病,其实,植物确实有净化空气的作用,但要说直接防治流感,可能没那么神奇,不过,有些树种确实能改善环境,间接提升我们的抵抗力,今天就来聊聊这个话题。先看哪些树能净化空气很多常见的绿化树,都有不错的净化能力,比如樟树,它的叶片能释放挥发性物质,这些物质可以抑制一些细菌,再比如柏树,它散发的芳香,能让人感觉神清气爽,还有银杏树,它的叶子能吸附灰尘,让空气更干
· 2026-04-03
矮化栽培,果树管理,提升产量
你想种果树吗,但院子不大,空间有限,这时候,矮化栽培就派上用场了,它能帮你,在有限空间里,种出更多果子,而且管理起来,也更方便省力,今天就来聊聊,矮化栽培那些事。先看矮化栽培是什么简单来说,就是让果树,长得矮小紧凑,传统果树,能长好几米高,采摘修剪都麻烦,矮化栽培后,树高可能就,一两米左右,不仅节省空间,还能让阳光,均匀照到树冠,果子品质更好。再看矮化栽培的好处好处真的不少,首先就是,节省土地资源
· 2026-04-03
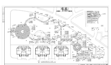
绿化环境设计图,提升居住品质,打造理想家园
想打造理想家园吗,绿化环境设计图很关键,它能帮你规划空间,还能提升居住品质,很多人拿到图纸后,却不知从何下手,其实,看懂设计图并不难,掌握几个要点就行。先看设计图的整体布局,一张好的设计图,布局清晰合理,它会标明功能区,比如休闲区在哪里,观赏区在什么位置,道路怎么走,这些信息很重要,能让你对整体有概念,然后,再看植物的配置,设计师会标注树种,还会说明搭配意图,比如哪些是主景树,哪些是背景植物,了解
· 2026-04-03
纹瓣悬铃花怎么养,掌握四个关键,花开满枝头
你是不是也喜欢纹瓣悬铃花,它开花时像小铃铛,特别可爱,但是,很多人养不好,要么不开花,要么叶子发黄,其实,养好它并不难,关键是要懂方法,今天,我们就来聊聊,怎么才能把它养得枝繁叶茂。先看光照和温度纹瓣悬铃花喜欢晒太阳,它需要充足的光照,每天最好晒四小时以上,这样它才能积累养分,然后,它才能顺利开花,不过,夏天中午太晒了,要适当遮阴,避免叶子被晒伤,它也比较怕冷,冬天温度低于五度,就要搬进室内,放在
· 2026-04-03
煤炭防治水专家于树春,矿井安全守护者,技术经验丰富
最近很多朋友问我,煤矿怎么防治水,其实,这个问题很关键,矿井安全,离不开水害防治,今天,我们就聊聊,于树春专家,他是这方面的行家,经验非常丰富。先看他的专业背景,于树春长期研究,煤矿防治水技术,他参与过,很多大型项目,解决过,不少棘手难题,所以,他的经验,值得大家参考。再看技术理念,他认为,防治水要超前,不能等出事,再想办法,要提前探测,要精准预报,这样才能,真正保障安全,他的这个思路,在很多矿井
· 2026-04-03
红钻花怎么养与风水,养护要点,摆放讲究
很多人喜欢红钻花,但养起来总出问题,叶子发黄,长势不好,其实,养好它并不难,关键要懂方法,同时,很多人也关心,红钻花和风水有关系吗,该怎么摆放呢,今天,我们就来聊聊这些。先看选盆与土壤养花先养根,选对盆土很重要,花盆别太大,比根球大一圈就行,盆底要有孔,方便透气排水,土壤要疏松,可以用腐叶土,再加点珍珠岩,这样透气性好,根才能呼吸顺畅。再看光照与温度红钻花喜欢散射光,别直接晒太阳,否则叶子会晒伤,
· 2026-04-03
园林绿化项目网站设计,提升企业形象,吸引更多客户
你是不是正在找,园林绿化网站设计,其实,很多公司都忽略了,网站的重要性,不过,一个好的网站,能帮你吸引客户,还能展示实力,所以,今天我们就聊聊,怎么设计才更好。先看网站的核心定位设计网站之前,你得想清楚,网站是给谁看的,比如,是给潜在客户看,还是给合作伙伴看,当然,目标不同,设计重点就不同,如果面向客户,就要多放案例,还有服务流程,如果面向合作,就要突出资质,以及团队实力,定位清晰了,设计才有方向
· 2026-04-03


