绿化施工图设计,提升施工效率,确保绿化效果
你想做好绿化施工吗,那么,绿化施工图设计很关键,它能帮你理清思路,避免施工混乱,很多人觉得,画图太麻烦,不如直接开工,结果呢,现场问题一大堆,苗木种错位置,管线被挖断,成本也超了,其实,一份好的施工图,就是施工的导航图,它能让你省心省力,还能保证最终效果。
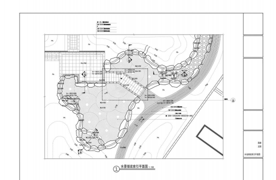
先看设计前的准备工作
做绿化施工图设计前,准备工作不能少,你得先拿到场地的基础资料,比如地形图,还有管线图,然后,要去现场实地看看,了解土壤情况,光照条件,以及周边环境,接着,要和甲方充分沟通,明确他们的需求和预算,这些信息,都是设计的基础,如果基础没打好,后面的图可能全白画。
再看图纸的核心内容
一份完整的绿化施工图,包含哪些内容呢,首先是总平面图,它标明了所有绿化的位置和范围,然后是种植设计图,详细画出每棵树的点位,以及灌木的片区,还有竖向设计图,表现地形的起伏和高差变化,另外,水电布置图也很重要,它标明了灌溉管线和照明点位,这些图纸,共同构成了施工的完整依据。
接着看图纸的绘制要点
绘制绿化施工图时,有几个要点要注意,图例必须规范统一,让施工方一看就懂,植物的标注要清晰,包括名称,规格和数量,对于特殊地形或重点区域,需要增加局部放大图,图纸的比例要选择合适,既能看清整体,也能看清细节,别忘了出图说明,把设计意图和施工要求写清楚。
最后看图纸的审核与交底
图纸画好了,不等于万事大吉,设计方内部要先审核一遍,检查有无错漏和矛盾之处,然后,要组织施工方进行图纸会审,当面解释设计难点和关键点,施工过程中,设计师最好能去现场指导,解决图纸与实际不符的问题,只有这样,图纸才能真正指导施工,而不是被扔在一边。
绿化施工图设计,是连接想法与现实的桥梁,它看似繁琐,却能避免很多麻烦,花点时间把图做好,施工时就会顺畅很多,最终,你才能收获一个,既美观又实用的绿化景观。
无土栽培系统,提升种植效率,实现环保种植
你想试试种菜吗,但没地方,其实,无土栽培系统,就能帮你,它不用土,也能种,特别适合,阳台空间,或者,室内种植,很多人好奇,它怎么用,效果如何,今天,我们就聊聊,这个新方式。先看种植原理无土栽培,顾名思义,就是不用土,植物根系,直接接触,营养液,或者,生长基质,比如,椰糠或岩棉,这样种植,养分吸收,更直接高效,而且,能避免,土壤里的,病虫害问题。再看系统类型常见类型,主要有两种,水培和基质培,水培系
· 2026-04-03
家养牡丹花怎么养,掌握关键技巧,轻松开出大花朵
你是不是也喜欢牡丹花,但是又担心养不好,其实,家养牡丹花并不难,只要注意几个关键点,就能让它年年开花,而且花朵又大又艳,今天,我们就来聊聊,在家怎么养好牡丹花。先看选苗和上盆家养牡丹花,第一步很关键,那就是选苗,最好选那些,根系发达的苗,而且苗龄要合适,太老的苗,活力可能不够,太小的苗,开花又得等,选好苗以后,就是上盆了,花盆不能太小,因为牡丹根系深,需要足够的空间,盆土也要选好,要疏松透气,而且
· 2026-04-03
园林绿化景观设计案例,提升空间美感,打造宜居环境
很多人想改造院子,但不知从何下手,其实看看好的案例,就能找到灵感,今天我们就聊聊,那些实用的设计思路。先看空间布局怎么规划好的布局是第一步,你得先想清楚,院子要用来做什么,是家人聚会,还是孩子玩耍,或者只想安静休息,功能不同,布局就完全不一样,比如聚会区,需要一块平整的场地,周围配上座椅,而休息区,则可以藏在角落,用植物稍微遮挡,形成私密空间,布局规划好了,动线才会顺畅,不会觉得拥挤或浪费。再看植
· 2026-04-03
桑葚树如何防治病虫害,识别常见问题,掌握应对方法
你是不是也遇到过,桑葚树叶子突然发黄,或者果实还没熟就掉了,这很可能就是病虫害在捣乱,别担心,今天我们就来聊聊,桑葚树常见的病虫害,以及怎么对付它们。先看识别常见虫害桑葚树最怕几种虫子,比如桑天牛,它会钻到树干里,还有桑尺蠖,专吃嫩叶,红蜘蛛也很讨厌,躲在叶子背面,吸食汁液,导致叶片失绿,看起来斑斑点点的,发现虫子要趁早,晚了就难治了。再看应对病害的方法病害主要有白粉病和褐斑病,白粉病叶子像撒了层
· 2026-04-03
大花蕙兰夏天怎么养,避免黄叶烂根,轻松度夏有妙招
你是不是也发现,夏天一到,家里的大花蕙兰就有点蔫了,叶子发黄,甚至烂根,让人看着心疼,其实,夏天养护,确实需要多花点心思,但别担心,掌握几个关键点,就能让它安全度夏,甚至还能长得更好。先看通风最关键夏天最怕闷热,大花蕙兰也一样,一定要把它放在通风好的地方,比如打开的窗边,或者空气流通的阳台,千万不要放在密不透风的角落,否则,高温加上不通风,很容易滋生细菌,导致烂根和黄叶。再看浇水有讲究夏天水分蒸发
· 2026-04-03
无土栽培芽苗菜,操作简单易上手,家庭种植好选择
你是不是也想种菜,但是家里没地方,或者觉得土太脏,其实,无土栽培芽苗菜,就能解决这些问题,它干净又方便,还能让你快速收获,特别适合在阳台或者厨房操作,今天,我们就来聊聊,怎么轻松搞定它。先看种植前的准备你得选好种子,绿豆、黄豆、豌豆,或者萝卜苗、香椿苗,都很适合,记住,要选专门用来发芽的种子,这样出芽率才高,然后,准备一个容器,带孔的托盘最好,方便沥水,再找几张育苗纸,或者干净的纱布,铺在托盘里,
· 2026-04-03
广州别墅园林绿化设计,打造私密空间,提升居住品质
很多人买了别墅,却不知道如何设计园林,其实,这并不复杂,关键在于理清思路,今天,我们就来聊聊这个话题,希望能给你一些启发。要明确自己的需求,你是想要一个休闲区,还是儿童乐园,或者,你更偏爱静谧的禅意花园,想清楚这些,设计就有了方向。接着,要考虑广州的气候特点,这里夏天炎热多雨,冬天温和湿润,所以,植物选择很重要,要选耐热耐湿的品种。然后,是空间的布局规划,别墅花园通常不大,但功能可以很全,比如,划
· 2026-04-03
沙田柚树怎么防治病虫,识别常见病害,掌握关键方法
你是不是也种了沙田柚,看着叶子发黄,心里很着急,其实,很多朋友都遇到过,果树生病了,不知道怎么办才好,今天,我们就来聊聊,沙田柚树的病虫防治,这可不是小事,处理不好,果子就长不好,甚至整棵树都可能死掉,所以,我们得认真对待。先看识别常见病害沙田柚树容易生病,首先得认清楚,最常见的是溃疡病,叶子会长出斑点,看起来像溃疡,然后就是炭疽病,果子会烂掉,叶子也会枯萎,还有黄龙病,这个更麻烦,整棵树都会变黄
· 2026-04-03
家庭怎么养中华花龟,掌握关键技巧,轻松养好它
很多人想养中华花龟,但不知道从何入手,其实,养好它并不难,关键是要掌握几个要点,今天,我们就来聊聊,家庭饲养中华花龟,到底需要注意什么。你得给它一个合适的家,一个足够大的饲养箱很重要,空间太小,乌龟会感到压抑,活动不开,建议选择长方形的龟缸,长度最好是龟背甲的五倍以上,这样它才能自由转身,游动起来也舒服。然后,环境布置不能马虎,水里要放一块晒台,晒台要露出水面,方便乌龟爬上去休息,晒太阳,晒台材质
· 2026-04-03
景观绿化设计施工组织,优化项目流程,提升整体效果
很多人关心,景观绿化怎么组织,其实,设计施工很关键,好的组织,能让项目更顺利,效果也更好,今天,我们就聊聊这个。先看设计阶段怎么准备设计是第一步,也是基础,你得先明确,项目要什么风格,是中式园林,还是现代简约,然后,要实地勘察,了解土壤情况,光照条件,还有周边环境,接着,和业主充分沟通,把需求搞清楚,避免后期反复修改,出详细方案,包括平面图,效果图,还有植物配置表。再看施工前的组织安排方案定了,就
· 2026-04-03


